Zes handige verbeteringen aan het invoegcentrum

Header - Screenshot Eplan

Sinds vorig jaar heeft Eplan het invoegcentrum toegevoegd aan het Eplan Platform. Om dit hulpmiddel nog gebruiksvriendelijker te maken, hebben we onlangs de nieuwe platformversie 2023 geïntroduceerd met een aantal verbeteringen aan het invoegcentrum. Wat hebben we precies veranderd en hoe helpt dat Eplan gebruikers?

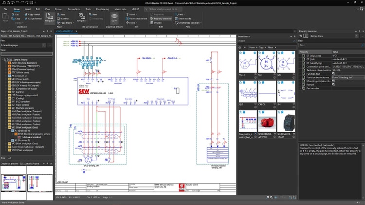
Open je als gebruiker de Grafische Editor van het Eplan Platform, dan zie je rechts een kader met het invoegcentrum. In deze onestopshop vind je alle macro’s, apparaten en symbolen. Met dit vorig jaar geïntroduceerde invoegcentrum kun je deze objecten gericht opzoeken en snel toevoegen aan jouw schema of layoutruimte. Toets jouw zoekvraag in en je krijgt een overzicht van relevante macro’s, apparaten en symbolen. Je kunt aan verschillende objecten ook tags toevoegen, zodat deze voortaan beter vindbaar worden. Onder ‘Laatst gebruikte’ vind je de laatst gebruikte macro’s, apparaten en symbolen.

Zes gebruiksvriendelijke verbeteringen

Gebruiksgemak staat altijd voorop. Daarom hebben we het invoegcentrum in de nieuwe versie van het Eplan Platform 2023 op een aantal punten aangepast. Hieronder de zes opvallendste verbeteringen op een rijtje.

  1. Bekijk specificaties in de lijstweergave
    Nieuw in het invoegcentrum is de lijstweergave. Wilde je voorheen als gebruiker de objectspecificaties zien? Dan moest je in de oude platformversie met de cursor elke afzonderlijke tegel af om deze eigenschappen te bekijken. Om gebruikers makkelijker inzicht te geven in de specificaties hebben we in de platformversie 2023 de lijstweergave geïntroduceerd. Selecteer een voorbeeldtegel en je ziet de verschillende specificaties in tabelkolommen. Zo hoef je niet langer alle tegels af om deze eigenschappen te bekijken.

  2. Open datasheets direct vanuit het invoegcentrum
    Onder in het nieuwe invoegcentrum vind je de datasheets van een geselecteerd apparaat. Je hoeft dus niet langer terug te gaan naar ‘artikelbeheer’ en vervolgens het artikelnummer in te voeren om deze sheets te bekijken. Hoe werkt dat dan in de nieuwe versie van het invoegcentrum? Klik met de rechtermuisknop op het artikel. In het uitrolmenu dat opent, kun je de datasheet openen. Deze is zichtbaar als hyperlink of als een bestand (pdf, jpeg, etc.). Uiteindelijk is het aan jou als gebruiker om dit naar eigen smaak in het artikelbeheer in te richten. Deze datasheetweergave voorkomt een aantal handelingen en maakt het makkelijk om even snel de artikeldetails te bekijken.

  3. Weet welke macro of welk functiesjabloon je toevoegt
    Wanneer je een apparaat selecteert, zie je een grafisch voorbeeld van de macro. Heeft een apparaat geen macro, dan krijg je een functiesjabloon te zien. De macro of het sjabloon wordt linksonder in de grafische weergave weergegeven. In de vorige versie van het invoegcentrum kon je ook op een apparaat klikken, alleen zag je dan een uitvergroot apparaatvoorbeeld. Het voordeel van dit nieuwe grafische macro- of sjabloonvoorbeeld is dat je meteen ziet wat je in jouw schema invoegt; een macro of losse functie.

  4. Zoek op objecttype
    Je kunt nu gericht zoeken op de drie objecttypes. Dat zorgt voor een betere performance, met een snellere weergave van zoekresultaten. Want in plaats van de complete database, hoeft de zoekfunctie alleen de groep macro’s, apparaten of symbolen te doorzoeken. Uiteraard kun je ook nog zoeken in de complete database, door te kiezen voor de nieuwe knop ‘Zoeken via alles’. Wanneer je op deze knop klikt, krijg je ook de keuze om te zoeken op macro, apparaat of symbool.

  5. Krijg meer zicht op tags
    Het nieuwe invoegcentrum heeft een nieuwe, uitgebreide tag-weergave. Door een object een tag te geven, maak je deze onderdeel van een bepaalde (sub)categorie. Vervolgens kun je op deze tagnaam zoeken in het invoegcentrum. Geef een apparaat bijvoorbeeld de tag van het merk. Selecteer je het object, dan zie je ook in welke tag-mappen dit object nog meer voorkomt. Zo kan je gerichter zoeken op bijvoorbeeld een apparaatmerk of symbooltype.

  6. Filter macro’s op gewenste standaardtype
    Gebruik je IEC- of NFPA-tekenwijze in jouw project? Met de nieuwe versie van het invoegcentrum kan je daar onderscheid in maken in je project en artikelbeheer. Daardoor krijg je geen onbruikbare macro’s aangeboden in de zoekresultaten.

Meer weten over het invoegcentrum?

Wil je meer weten over de nieuwe mogelijkheden van het invoegcentrum in het Eplan Platform 2023? In het Eplan Helpcentrum zijn de uitbreidingen nogmaals beschreven, aangevuld met praktijkvoorbeelden, beschrijvingen en afbeeldingen van onder andere button-icoontjes.

Lees meer over de uitbreidingen van het invoegcentrum