Building Information Modeling (BIM) - was steckt dahinter?

Building Information Modeling (BIM) - was steckt dahinter?

Einfach nur ein neuer Trend? Oder eine unverzichtbare Methode? Aktuell liefert BIM Interpretationsspielraum - und bietet zugleich tolle Chancen in der Gebäudeautomation. Das Interview mit Rolf Schulte und der Zeitschrift "de" klärt auf.

Gefragt nach der Definition von BIM sprudelt es förmlich aus ihm heraus: "Building Information Modeling (kurz BIM) betrachtet alle Phasen eines Gebäudes: Planung, Bau, Betrieb und Verwertung", erklärt Rolf Schulte, Vertical Market Manager Building Technologies bei Eplan. "Der Fokus liegt auf einer softwarebasierten Vernetzung aller Phasen. Mittels der BIM Methode findet eine integrale, gewerkeübergreifende und leistungsphasenunabhängige Zusammenarbeit von beteiligten Unternehmen, Nutzern und Eigentümern statt." Der Vorteil liegt aus seiner Sicht darin, dass Projekte, sei es Neubau, Umbau oder Sanierung, schneller und mit niedrigeren Kosten realisiert werden können. Zudem steigt die Qualität der Daten: Planungs- und Ausführungsdaten bieten in nachgelagerten Phasen einen hohen Mehrwert.

Rolf Schulte Eplan

"Meiner Einschätzung nach wird sich die BIM Methode unaufhörlich weiterverbreiten und durchsetzen. Auch vor dem Hintergrund, dass sie einen notwendigen Technologiewechsel mit sich bringt."

Rolf Schulte, Vertical Market Manager Building Technologies bei Eplan.


Bereits heute lassen sich nach Rolf Schultes Ansicht die Eplan Lösungen sehr gut in den BIM Prozess integrieren. Beispielsweise können Unternehmen aus einem BIM Modell Informationen von Komponenten der technischen Gebäudeausstattung, die relevant für die Gebäudeautomation oder die Energieversorgung des Gebäudes sind, in die Eplan Plattform überführen. Dort werden die Daten in durchgängigen Prozessen verarbeitet, um diese anschließend beispielsweise für die Programmierung der Steuerung, der AVA oder für den Bau der Verteilungen und Schaltschränke zur Verfügung zu stellen.

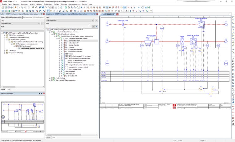
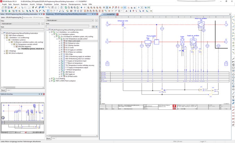
Regelschema mit Darstellung des Seiten-Navigators und Vorplanungs-Navigators in der Eplan Plattform. Regelschema mit Darstellung des Seiten-Navigators und Vorplanungs-Navigators in der Eplan Plattform.

Jetzt mal ganz genau - was steckt drin in BIM?

Stichwort Standards: Wie weit sind Normierungsvorhaben aus Ihrer Sicht gediehen?

Rolf Schulte: Ein großer Vorteil im Bauwesen sind die vielen Normen und Standards. Diese Vielfalt ist zugleich für die Anwendung der BIM Methode eine enorme Herausforderung. Normen und Standards geben der BIM Methode ein Korsett. Auf Grund der sich ständig erweiternden technologischen Möglichkeiten werden Normen kontinuierlich überprüft, geändert, erweitert und angepasst. Und das passiert auch hinsichtlich der BIM Methode. Einiges ist schon getan, vieles ist noch zu tun. Schließlich sind die Anforderungen an die BIM Methode auch abhängig von lokalen Normen und Vorschriften. Wir eruieren derzeit bei Eplan, wie wir unsere Plattformlösungen global noch tiefer in den BIM Prozess verwurzeln können.

GA-Funktionsliste nach VDI 3814 zum Regelschema. GA-Funktionsliste nach VDI 3814 zum Regelschema.

Closed BIM versus Open BIM: Was hat es damit auf sich?

Bei Closed BIM oder Native BIM werden die Daten nach einem proprietären Informationsmodell eines Softwareherstellers ausgetauscht und integriert. Unter Verwendung einer einzigen Softwarelösung können alle Anforderungen der Gewerke Hochbau, Gebäudetechnik und Statik innerhalb eines BIM Modells mit einer Software realisiert werden. Bauteile aus den Gewerken stehen in Beziehung zueinander. Ändert der Architekt die Wand, an der sich eine Kabeltrasse ausrichtet, erhält sowohl der Architekt als auch der Elektroplaner eine Information darüber. Die Closed BIM Methode bietet sehr viele Vorteile bezüglich der Datenkonsistenz, der Qualität und der Kollaboration. Zugleich setzt sie voraus, dass alle Projektbeteiligten die gleiche Softwarelösung einsetzen.

Dem gegenüber steht die Open BIM Methode. Hier werden die Daten mit offenen Informationsmodellen auf Basis unterschiedlicher Softwarelösungen ausgetauscht. Der Modellaustausch erfolgt über das IFC- und die Workflow-Kommunikation über das BCF-Format. Die Kollaboration oder die Kollisionsprüfung wird über sogenannte Modellchecker durchgeführt. Aus diesem Grund ist die Open BIM Methode etwas aufwendiger und sie ist anfälliger hinsichtlich Dateninkonsistenz. Aus meiner Sicht ist für die Bereiche Hochbau, Gebäudetechnik und Statik die Closed BIM Methode zu empfehlen. Alle anderen Gewerke oder Bereiche wie Infrastruktur oder Landschaftsbau können das BIM Modell über die Open BIM Methode ergänzen.

Günstiger oder am Ende doch teurer?

Was Kosten, Aufwand und anfängliche Einbußen bei der Produktivität verursacht, sind die Vorbereitung, Ausbildung und Implementierung der BIM Methode im Unternehmen. Es handelt sich hier für die Unternehmen um einen Technologiewechsel. Das ist ähnlich vergleichbar mit dem Wechsel von vor gut 30 Jahren – vom Zeichenbrett auf die CAD-Technologie. Dieser wurde von vielen damals sehr skeptisch gesehen und war ebenfalls mit erheblichen Kosten verbunden. Der Vorteil damals: Durch den Computer konnte man den Technologiewechsel real sehen.

Ihr Fazit?

Die BIM Methode verteuert nicht die Planung. Sie macht diese effizienter und damit kostengünstiger, wenn sie gut eingeführt und richtig angewendet wird.

Vielen Dank, Herr Schulte.

Das komplette Interview mit der Zeitschrift "de" können Sie hier herunterladen.