Teil- und Mehrstockklemmen in Eplan effizient anwenden? So geht’s!

Eplan effizient nutzen

Was genau sind Teil- und Mehrstockklemmen und wie werden sie im Engineering effizient angewendet? Wir verraten nützliche Tipps. Mehr zu Klemmen, Steckern und Kabeln erfahren Anwender auch in der neuen Online-Trainingsreihe für Eplan Profis.

Es gibt Themen, bei denen sich selbst „alte Eplan Hasen“ über Tipps und Tricks für den Arbeitsalltag freuen. Dazu gehört zum Beispiel auch die effiziente Projektierung von Klemmen, Steckern und Kabeln. In der neuen Personal Skill Trainingsreihe der Eplan Training Academy wird dieses Thema seit Ende 2020 in Tagesveranstaltungen genauer beleuchtet. Praktisch dabei: Die Trainings finden online statt, damit Anwender bequem aus dem Büro oder Home-Office teilnehmen können. Das bietet Planungssicherheit und reduziert den Reiseaufwand. Dabei wird das Expertenwissen in der gleichen Qualität vermittelt wie in den Präsenztrainings der Schulungszentren von Eplan.

Kleine Klemmen-Kunde: Tipps und Tricks vom Eplan Trainer

Online-Trainer Tom Wolff

Ein Vorgeschmack auf die Trainingsinhalte gefällig?

Eplan Trainer Tom Wolff gibt Ihnen hier einen Überblick über den Einsatz von Teil- und Mehrstockklemmen. Darüber hinaus versorgt er Sie mit nützlichen Tipps, wie Sie mit Teilklemmen Ihre Engineering-Projekte übersichtlicher gestalten können.

Allgemeine Definition: Mehrstockklemmen, Durchgangsklemmen, Teilklemmen

Grundsätzlich dienen Klemmen in der Elektrotechnik als lösbare Anschlüsse oder zur Verbindung von Drähten, Adern und Leitungen. Im geklemmten Zustand müssen sie einen dauerhaften, sicheren Kontakt gewährleisten. In der Regel werden mehrere Klemmen im Verbund mit Zubehör wie Beschriftungen und Brücken sowie Endhalter und Trennstege als Klemmleisten verwendet. Jede Klemme wird durch ein Betriebsmittelkennzeichen (BMK) definiert.

Darüber hinaus kann zwischen Mehrstock- und Durchgangsklemmen unterschieden werden: Eine normale Durchgangsklemme verfügt über zwei Anschlüsse für Drähte. Eine Mehrstockklemme ist – wie der Name schon sagt – mehrstöckig angelegt. Daher können hier auch mehr Drähte angeschlossen werden, also zum Beispiel zwei Stück pro Klemmenetage. Im Gegensatz dazu handelt es sich bei Teilklemmen um keine „physischen“ Klemmentypen, sondern um einen Anschluss – also den Teil einer Klemme.

Durchgangsklemme gegenüber Mehrstockklemme, beide von Phoenix Contact Ein Beispiel zum Vergleich: links eine Durchgangsklemme, rechts eine Mehrstockklemme, beide von Phoenix Contact.

Welche Funktion übernehmen Mehrstock- und Teilklemmen bei der Projektierung mit Eplan Software?

Generell erfolgt die Klemmenprojektierung innerhalb der Eplan Plattform vorwiegend in Eplan Electric P8. Hier können Sie die notwendigen Artikel hinterlegen. Mit dem Klemmleistennavigator fügen Sie Informationen wie Artikelauswahl, Verwendungszweck, Nummerierung und Sortierung hinzu. Bei der Schaltschrankplanung können die Klemmen mit Eplan Pro Panel auch in 3D projektiert werden.

Screenshot: Klemmleistennavigator in Eplan Electric P8 mit Quick-Info
Screenshot: 3D-Bild aus Eplan Pro Panel, das den Bauraum mit Klemmen zeigt

Links: Klemmleistennavigator in Eplan Electric P8 mit Quick-Info. Rechts: Blick in Eplan Pro Panel – Bauraum mit Klemmen in 3D.

Mehrstockklemmen bestehen aus mehreren übereinander angeordneten Klemmenetagen. Um diese in Eplan zu verwalten, hat jede Klemme eine Etageninformation. Unterschiedliche Funktionen können einer Mehrstockklemme zugeteilt werden. Mehrstockklemmen in Eplan werden mittels herkömmlicher Klemmensymbole dargestellt. Im Schaltplan eingefügte Klemmen sind zum Beispiel Bestandteil einer Mehrstockklemme, wenn sie das gleiche BMK tragen, in der Sortierreihenfolge direkt aufeinanderfolgen und über immer größer oder immer kleiner werdende Werte für die Etage verfügen. Bei aufsteigender Sortierung hat die unterste Etage im Klemmengehäuse die Etagennummer "1".

Teilklemmen hingegen können innerhalb von Eplan Anwendungen als verteilt darstellbare Klemmenanschlüsse/Funktionen verstanden werden. An jeder Teilklemme lassen sich ein oder mehrere Anschlüsse abbilden. Deren Anzahl ist beliebig und wird durch die Wahl der Funktionsdefinition festgelegt.

Tipp: Mit Teilklemmen Schaltpläne übersichtlich gestalten und Abbruchstellen reduzieren

Mit Hilfe von Teilklemmen können Sie Anschlüsse von Klemmen direkt an der Stelle im Schaltplan einfügen, wo diese im Projekt tatsächlich gebraucht werden. So reduzieren Sie effektiv die Menge an Abbruchstellen, die durch den gesamten Plan verweisen. Das macht den Schaltplan deutlich übersichtlicher. Und es zahlt sich nicht nur für die weitere Bearbeitung im Engineering aus, sondern ist auch für nachfolgende Prozessschritte hilfreich: Durch die geplante Teilklemme ist für den Verdrahter im Schaltplan ohne längeres Suchen zu erkennen, an welche Stelle der Draht platziert werden soll. Auch Wartungsarbeiten verlaufen reibungsloser, wenn Servicetechniker nicht lange über Abbruchstellen den gesamten Schaltplan durchsuchen müssen, um einen bestimmten Anschluss zu ermitteln.

Die Bilder unten zeigen Ihnen Folgendes:

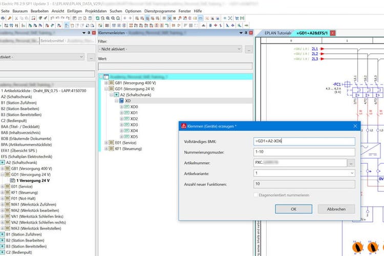
Screenshot: Klemmleistennavigator in Eplan Electric P8 mit Schritt-für-Schritt Anleitung zum Erzeugen einer Klemme
Screenshot: Klemmleistennavigator in Eplan Electric P8 mit Schritt-für-Schritt Anleitung zum Erzeugen einer Klemme
So erzeugen Sie eine Klemme im Klemmleistenavigator – Step 1
So erzeugen Sie eine Klemme im Klemmleistenavigator – Step 2
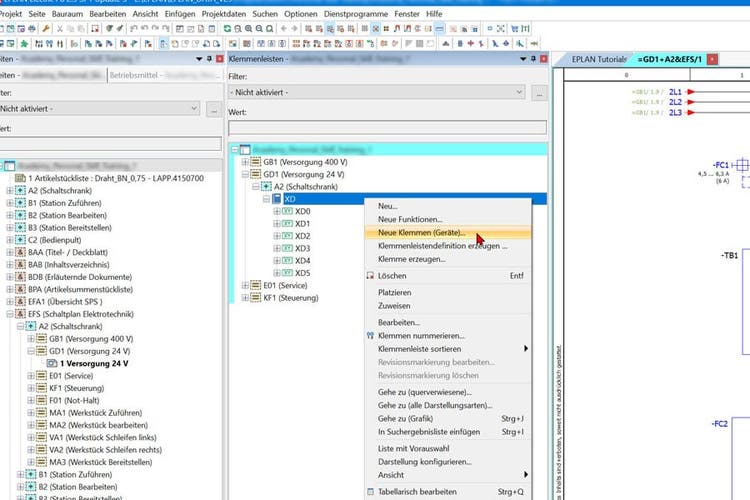
Screenshot: Klemmleistennavigator in Eplan Electric P8 mit Schritt-für-Schritt Anleitung zum Erzeugen einer Klemme
Screenshot: Klemmleistennavigator in Eplan Electric P8 mit Schritt-für-Schritt Anleitung zum Erzeugen einer Klemme
So erzeugen Sie eine Klemme im Klemmleistenavigator – Step 3
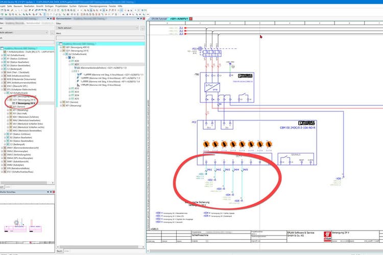
Per Drag & Drop fügen Sie Teilklemmen aus dem Klemmleistennavigator direkt in Ihr Projekt ein.
Screenshot: Klemmleistennavigator in Eplan Electric P8 mit Schritt-für-Schritt Anleitung zum Erzeugen einer Klemme
Screenshot: Klemmleistennavigator in Eplan Electric P8 mit Schritt-für-Schritt Anleitung zum Erzeugen einer Klemme
Zum Vergleich: Mit Teilklemmen – wie hier im Bild – wird Ihr Projekt deutlich übersichtlicher …
… als ohne Teilklemme. Denn …
Screenshot des Klemmleistennavigators in Eplan Electric P8 und einer technischen Zeichnung
… solche Abbruchstellen, die durch den gesamten Plan verweisen, werden mit Teilklemmen effektiv reduziert.

Jetzt zur Online-Schulung zum Thema Klemmen, Stecker und Kabel anmelden!

Sie möchten mehr erfahren? Dann melden Sie sich jetzt für das "Personal Skill" Online-Training der Eplan Training Academy an!

Infos & Anmeldung zum Personal Skill Online-Training

Zum Schluss noch ein Extra-Tipp zum Thema Komponentendaten: Das neue Eplan Data Portal

Mit dem Eplan Data Portal haben Sie direkten Online-Zugriff auf hochwertige Produktkataloge aus einem laufend wachsenden Pool namhafter Komponentenhersteller. Die neuste Version des Eplan Data Portals mit dem auf eClass basierenden Data Standard ist exklusiv in der Cloud-Umgebung Eplan ePulse verfügbar.