Eplan Education an der HS Coburg: Software für Elektrokonstruktion bereits im Studium kennenlernen

Eplan Seminarraum an der HS Coburg

Mit Eplan Education hält Eplan ein spezielles Angebot für Hochschulen bereit. Dies nutzt auch die HS Coburg. In ihrem Fachbereich Elektrotechnik und Informationstechnik setzt sie Eplan Electric P8 in Lehre und Forschung ein.

Fachkräftemangel hin, Bewerbermarkt her – wenn Unternehmen Hochschulabsolventen einstellen, achten sie darauf, welche branchenspezifischen Engineering-Kompetenzen diese neben dem technischen Fachwissen vorweisen können. Immer mehr Hochschulen integrieren daher branchenübliche Lösungen in ihre jeweiligen Studiengänge – so auch die HS Coburg. In ihrem Umfeld sind viele Unternehmen angesiedelt, die mit Eplan Electric P8 arbeiten. Im Fachbereich Elektrotechnik bietet sie daher Studierenden der Bachelorstudiengänge Automatisierungstechnik und Robotik im Rahmen eines Wahlpflichtmoduls die Möglichkeit, ein Semester lang den Umgang mit Eplan Electric P8 zu erlernen. Dazu nutzt die Hochschule Eplan Education Lizenzen für Bildungseinrichtungen.

Eplan Electric P8 in der Lehre

Das Modul „Hardwareentwurf in der Automatisierungstechnik“ dient dazu, den jungen Menschen „Kenntnisse hinsichtlich der sicherheitsgerichteten Konstruktion von Maschinen zu vermitteln“, erläutert Prof. Dr.-Ing. Jochen Merhof, Dekan des Fachbereichs Elektrotechnik und Informatik. „Die Studierenden lernen dabei auch, mit Hilfe von Eplan Electric P8 eigenständig einen Stromlaufplan zu erstellen.“

„Der Plan, den die Studierenden erstellen, muss die aktuelle europäische Maschinenrichtlinie ebenso berücksichtigen wie die gültigen Normen der Betriebs- und Funktionssicherheit“, ergänzt Prof. Robert Thomas, der das Modul als Dozent betreut.

Bei den Studierenden kommt das Angebot der Hochschule hervorragend an. „Die 25 mit Eplan Electric P8 ausgestatteten Arbeitsplätze sind immer gut besucht“, so Merhof.

Drehbank Die Aufgabenstellung für die Studierenden lautet: Eine gebrauchte Drehbank zum Abziehen von Schleifkörpern ist mit neuer Elektrik einschließlich neuem Schaltschrank und neuester Sicherheitstechnik nach EU-Maschinenrichtlinie auszustatten.

Das Ziel: Eigenständig einen Stromlaufplan erstellen

Da das Modul Teil des Hauptstudiums ist, sind die Studierenden mit den Grundlagen der Digitaltechnik, der SPS sowie den Schaltzeichen inzwischen vertraut. Zudem haben sie bereits ihr Praxissemester in einem Unternehmen absolviert. Dadurch haben sie einen ersten Eindruck davon bekommen, welche Kompetenzen der Arbeitsmarkt ihnen abverlangt. Viele bringen dank einer zuvor abgeschlossenen Ausbildung oder im Rahmen ihres dualen Studiums ohnehin praktische Kenntnisse mit. „Im fünften Semester des insgesamt siebensemestrigen Studiengangs sind sie damit gut aufgestellt für eine praktische Studienarbeit“, so Merhof.

Das Modul umfasst insgesamt 60 Stunden, die sich je zur Hälfte auf Vorlesungen und auf praktische Übungen verteilen, die sich unmittelbar an die Vorlesungen anschließen. Die Studierenden lernen, Schaltpläne (z. B. Symbole, Nummerierung etc.) zu lesen und selbst zu erstellen. Unter anderem erfahren sie, welche Vielfalt an Möglichkeiten die Eplan Lösung bei der Konstruktion einer Anwendung bietet, welche Komponenten die Software zur Verfügung stellt und wie diese sich verbinden lassen. Nicht zuletzt lernen sie so den Umgang mit dem Eplan Data Portal.

Die Projektaufgabe zum Abschluss des Semesters besteht darin, selbstständig einen Hardwareentwurf für eine gebrauchte, vollautomatisierte Drehbank zu konzipieren, die mit neuer Elektrik, neuem Schaltschrank sowie neuester Sicherheitstechnik auf Basis der EU-Maschinenrichtlinie ausgestattet werden soll. Im Rahmen dieses Konzepts sollen sie anhand einer Stückliste mithilfe von Eplan Electric P8 einen Stromlaufplan erstellen, der 15 bis 20 Seiten umfasst. Zur Bearbeitung der Aufgabe erhalten die Studierenden detaillierte Informationen zu Ausstattung, Arbeitsweise und Funktionen der Werkzeugmaschine sowie Listen mit Bedien- und Sicherheitselementen.

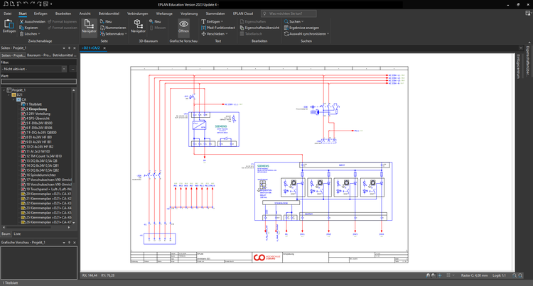
Stromlaufplan aus Eplan Electric P8 Beispielhafter Screenshot aus einem Stromlaufplan, der im Rahmen des Studierendenprojektes an der HS Coburg mit Eplan Electric P8 erstellt wurde.

Eplan Electric P8 in der Forschung

Neben der Education Lizenz hat die Fakultät außerdem die Professional Lizenz von Eplan Electric P8 erworben. Diese nutzt sie für Forschungszwecke, zum Beispiel in ihrem Zentrum für Mobilität und Energie. Dort arbeiten Wissenschaftler der Hochschule unter anderem an den Themen Erzeugung, Verteilung und Speicherung erneuerbarer Energien. Konkret geht es um Fragen des Energiemanagements, der Datenerfassung und der Gestaltung von Mess-Systemen. In diesem Zusammenhang sammeln auch Studenten aus den anderen beiden Ingenieurstudiengängen des Fachbereichs (Energietechnik und Erneuerbare Energien sowie Elektro- und Informationstechnik) sowie Masterstudenten der Elektro- und Informationstechnik Erfahrungen mit Eplan Electric P8. Unter anderem können sie sich mit dem Thema Dokumentation beziehungsweise digitaler Zwilling vertraut machen.

Bei der Erforschung von neuen Steuerungsmöglichkeiten in Energieverteilungssystemen am Institut für Hochspannungstechnik, Energiesystem- und Anlagendiagnose (IHEA) geht es beispielsweise um die Konzeption und den Aufbau von Mess- und Regelungssystemen, mit denen das Ladeverhalten von E-Fahrzeugen und andere sektorenübergreifende Technologien zur netzdienlichen Steuerung von Flexibilitäten untersucht werden können. Dabei werden Daten außerhalb der Hochschule erhoben, sei es in Parkhäusern, Firmen oder Privathaushalten, welche in der Hochschule erfasst, ausgewertet und zu intelligenten Steuersignalen flexibler Lasten weiterverarbeitet werden. Die hierzu nötigen Schaltpläne für die Mess-Systeme sowie für die benötigte Hardware im Labor werden von Elektromeister Martin Scherbel im Labor für Energiespeicheranwendungen und Intelligente Netze entwickelt.

Weitere Themen

Informationen zu Eplan Education für Lehrende finden Sie hier.