Když pracovní postupy urychlují projektování

Když pracovní postupy urychlují projektování

„Výkop“ proběhl na veletrhu Hannover Messe Digital Edition. Právě zde Eplan představil první letmý pohled na nadcházející verzi svojí platformy – Eplan Platforma 2022. Ti, kdo očekávali jednoduchou aktualizaci, byli překvapeni! Za novou platformou Eplan se skrývá nová a důkladně přepracovaná verze: jedná se o kompletní balíček, který se díky novému uživatelskému rozhraním překvapivě snadno používá a současně umožňuje plánování projektů na bázi pracovního toku, a to na nebývalé úrovni efektivity.

S nejmodernějším vzhledem a funkčností, vycházející z nejnovějších aplikací pro mobilní zařízení a globálně zavedených desktopových aplikací – Eplan Platforma 2022 se zaměřuje na jednoduchost a srozumitelnost. Jedním z vrcholů je zcela přepracované uživatelské rozhraní, které podporuje intuitivní pracovní metody založené na pracovním toku. Již brzy tak budou mít uživatelé důležité a často používané funkce přímo před sebou. Produktový manažer Eplan, Sean Mulherrin, vysvětluje: „Uživatelé nové platformy Eplan se budou v softwaru snadno orientovat. Navigace v rámci projektu je mimořádně jednoduchá a uživatelské rozhraní s technologií pásu karet a tmavým režimem zobarzení přináší zcela nový uživatelský zážitek. Jednoduše činí plánování a navrhování projektů zábavnější.“

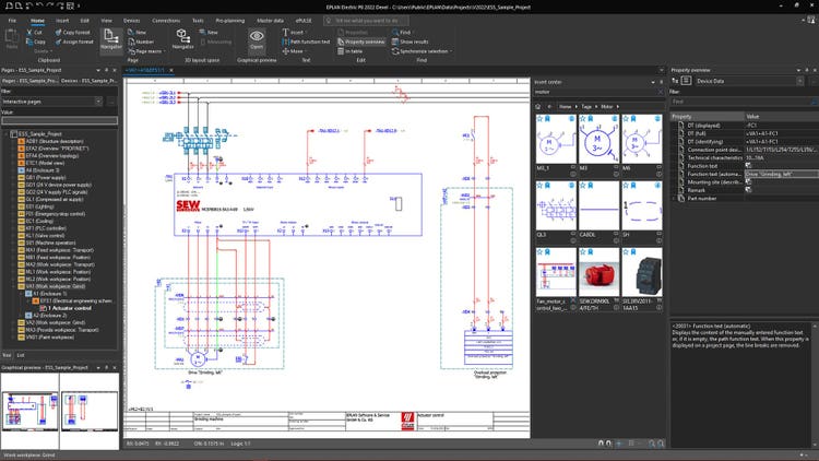
Funkční ribbon technologie (pás karet) – rychlý přístup k běžným úkolům

Praktická multifunkční lišta využívající moderní ribbon technologii (pás karet) se flexibilně přizpůsobuje aplikaci – například při přechodu z 2D na 3D – přičemž kombinuje různé nabídky a panely nástrojů. Sean Mulherrin říká: „Nový design ještě více usnadní každodenní práci nejen zkušeným uživatelům. I nováčci budou moci rychle ovládnout software, protože jednotlivé příkazy jsou nyní přístupné mnohem rychleji. Uživatelé mají přímo před sebou funkce, které potřebují, což urychluje plánování projektu.“ Kromě toho jsme zcela přepracovali rozhraní pro navrhování ve 2D i 3D. Výsledkem je moderní aplikace s optimalizovaným vzhledem a dojmem, v neposlední řadě díky podpoře tmavého a světlého režimu.

Dark mode Platforma 2022 Nová Eplan Platforma 2022 se zcela novým uživatelským rozhraním. Praktický multifunkční pás karet využívající nejmodernější technologii se flexibilně přizpůsobuje aplikaci.

Nové 2D grafické jádro – vysoký výkon i pro větší projekty

Při vytváření schémat stoupají požadavky na výkonnou 2D grafiku jak v předběžném plánování, tak v kontextu automatizace budov. Zároveň významně roste i množství dat. Sean Mulherrin potvrzuje: „S novým 2D grafickým modulem nabízí Eplan Platforma 2022 silné argumenty z hlediska výkonu.“ Například je značně zrychleno zpracování při importu souborů DXF či DWG. To zvyšuje výkon pro vizualizaci a zpracování větších projektů. Celkově se úroveň detailů stává lépe ovladatelnou, což zvyšuje kvalitu grafického zobrazení. Tento pokrok se vyplatí značnou časovou úsporou, zejména u větších projektů, které často obsahují mnoho stovek nebo tisíců stránek schémat.

Nová centralizovaná správa zařízení – včetně správy variant

Data zařízení jsou z těch nejdůležitějších dat v projektování. Pokud jsou dobře definována, poskytují důležité informace pro předběžné plánování, projektování a pro pozdější fáze výroby řídicích systémů. I zde neustále roste rozmanitost informací (obrázky, 3D modely, vzory pro vrtání a údaje o připojení, nemluvě o obchodních informacích). Proto je správa a používání přístrojových dat v projekci obzvlášť důležitá. Díky své objektové orientaci vám nová centralizovaná správa zařízení nabízí flexibilitu při změnách a přizpůsobování dat zařízení. Integrovaná správa variant dovoluje ukládat všechny vlastnosti zařízení s individuální variantou, která poté umožňuje přiřazovat zařízení různá makra prakticky ihned. Jak vysvětluje Sean Mulherrin: „S naší centralizovanou správou zařízení jsme se u našich uživatelů skutečně strefili do černého. S použitím maker v projektu se zvyšují možnosti automatizace. A vysoký stupeň flexibility správy nových zařízení bude vyhovovat i budoucím požadavkům v průběhu narůstající digitalizace.“ Dalším praktickým plusem je kombinace s Excelem pro jednoduché zpracování externích přístrojových dat. Jednotlivé vlastnosti zařízení lze v řešení Eplan libovolně konfigurovat – tato výhoda ergonomie v kombinaci s moderním designem také usnadňuje začátky používání softwaru.

Zobrazení Backstage view – dobrý přehled o celém projektu

Nové zobrazení Backstage usnadňuje správu celých projektů a všech projektových dat. Zde můžete vytvářet a tisknout projekty i nastavovat možnosti. To dovoluje upravovat všechny aspekty projektu Eplan na jednom centrálním místě – například importovat DWG soubory nebo exportovat PLC či výrobní data. Seznam naposledy otevřených projektů poskytuje dobrý přehled, stejně jako logická organizace všech příkazů souvisejících s projektem. Zde je také jasně uspořádán import, export nebo integrace funkcí API do vlastní infrastruktury systému. A to rovněž dává uživatelům přehled o vlastnostech projektu.

Centrum vkládání: Rychlý přístup k symbolům, makrům a zařízením

Nově integrované Centrum vkládání spojuje všechny funkce pro vkládání symbolů, maker a zařízení, včetně grafického náhledu, které jsou potřebné pro efektivní vytváření schémat. Často používané komponenty lze označit jako oblíbené a přiřadit je jednotlivým pracovním postupům. Všechny funkce pro vkládání symbolů, maker a zařízení je tedy možné kombinovat a používat pro konkrétní pracovní postupy. To umožňuje rychlý přístup ke komponentám, pravidelně používaným při vytváření schémat – což vede k ještě rychlejšímu dokončování standardních úkolů. Sean-Mulherrin „Navigace v rámci projektu je mimořádně snadná a uživatelské rozhraní s technologií pásu karet a zobrazením v tmavém režimu poskytuje uživatelům zcela nový uživatelský zážitek. Jednoduše činí plánování a navrhování projektů zábavnější,“ říká produktový manažer Eplan Sean Mulherrin.

Systematicky postupující inženýrské procesy

Nová Eplan Platforma 2022, která je uváděna na trh v létě pod heslem „It’s in your hands“ (tedy „je to ve vašich rukách“), obsahuje mnoho dalších inovací. Jednou z nich je přímé propojení cloudových řešení a řešení pro lokální a síťové instalace. S aplikací Eplan eManage můžete projekty nahrávat z platformy Eplan do cloudového prostředí, kde je lze spravovat a sdílet. Bezplatná verze je k dispozici od poloviny března.
Jak to vidí Sean Mulherrin, nová Eplan Platforma 2022 zapůsobí jak zevnitř, tak z vnějšku: „Vnitřkem – to znamená srdcem platformy – je nová správa zařízení. Na vnější straně mohou uživatelé očekávat nové stylové uživatelské rozhraní pro intuitivní práci, jehož používání je snadnější než kdy dříve.“ CAE systém tak zpřístupňuje a usnadňuje uchopení komplexních odborných funkcí. Shrnuto: projektování budoucnosti se systematicky vyvíjí, aby vyhovělo potřebám zákazníků.

Více informací o platformě Eplan

Eplan Platforma 2022, která je uváděna na trh pod heslem „It’s in your hands“ (tedy „je to ve vašich rukách“), obsahuje mnoho dalších inovací.

Zjistit více