Jak generovat a umísťovat QR kódy na stránky projektu Eplan

Jak generovat a umísťovat QR kódy na stránky projektu EPLAN

Skutečnost, že něco existuje, neznamená, že to nelze zlepšit. Stávající verze softwaru Eplan nám umožňuje obejít se bez psaní na mobilních zařízeních, a to díky QR kódům. Podívejme se na funkci podrobněji.

Již od verze 2.9 můžeme vkládat hypertextové odkazy do dokumentace pomocí QR kódů. Tyto kódy jsou rozpoznány a otevřeny mobilním zařízením, a to bez potřeby zdlouhavého psaní. QR kódy jsou zpracovány pouhým naskenováním mobilním telefonem nebo tabletem, a to i v případě tištěné dokumentace. Uložená data jsou pak okamžitě dostupná na mobilním zařízení.

Co jsou to QR kódy?

Klasický QR kód známe – skládá se ze čtvercové matice černých a bílých polí, která představují kódovaná data v binárním tvaru. Kód je sice dosti komplikovaný, ale hezké na něm je snadné použití mobilními uživateli. Do QR kódů lze vložit jakékoli informace. Ty jsou okamžitě zpracovány a zobrazeny na chytrém telefonu nebo tabletu. Musíme však mít k dispozici aplikaci pro mobilní zařízení, která interpretuje data. Takové aplikace bývají zdarma dostupné v každém obchodě s aplikacemi.

QR kódy v aplikaci Eplan

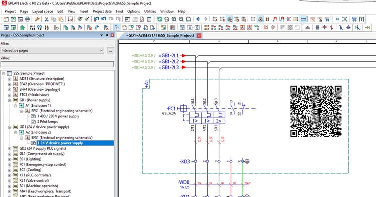
Eplan využívá technologii QR kódu v softwarových aplikacích pro průmysl. Od verze softwaru 2.9 mohou uživatelé generovat QR kódy, do nichž jsou vloženy vlastnosti nebo internetová adresa. Kód pak lze umístit na stránku projektu a následně jej snadno přečíst mobilním telefonem.

Pro koncové uživatele jsou QR kódy užitečné během údržby. Pro zajištění dostupnosti aktuální dokumentace lze přímo na stroje nebo na rozváděče umístit QR kódy s přímými odkazy na relevantní dokumentaci v cloudu.

Jak používat QR kódy v projektech Eplan

QR kódy lze do dokumentace umístit stejně snadno, jak snadné je samotné získání dat mobilní aplikací: Do pole „Formát bloku“ na záložce „QR kód“ (viz obrázek níže) zadáme internetovou adresu nebo text, který by měl být vygenerován jako QR kód a zobrazen na stránce projektu.

Pro výstup QR kódů ve vyhodnocení máme k dispozici nové zaškrtávací políčko „Zobraz jako QR kód“ (viz obrázek níže) pro zástupné texty v dialogu „Vlastnosti zástupného objektu“ na záložce „Umístění“.

A to je vše – bavme se „kódováním“!

Další tipy a triky pro používání Eplan

Naleznete na blogu.

Zjistit více