Eplan Educacional: familiarizando-se com o software de projeto elétrico durante seus estudos

Eplan Educacional

Com o Eplan Educacional, a Eplan tem uma oferta especial para universidades. A Coburg University of Applied Sciences também faz uso disso. Em seu Departamento de Engenharia Elétrica e Tecnologia da Informação, ela usa o Eplan Electric P8 no ensino e na pesquisa.

Seja por falta de mão de obra qualificada ou por falta de candidatos, quando as empresas contratam graduados universitários, elas prestam atenção às habilidades de engenharia específicas do setor que eles podem demonstrar, além de seus conhecimentos técnicos. Portanto, cada vez mais universidades estão integrando soluções específicas do setor em seus respectivos programas de graduação, incluindo a Coburg University of Applied Sciences. Muitas empresas que trabalham com o Eplan Electric P8 estão localizadas em sua vizinhança. No Departamento de Engenharia Elétrica, ela oferece aos alunos dos programas de bacharelado em Tecnologia de Automação e Robótica a oportunidade de passar um semestre aprendendo a usar o Eplan Electric P8 como parte de um módulo eletivo obrigatório. Para isso, a universidade usa as licenças do Eplan Educacional para instituições educacionais.

Eplan Electric P8 no ensino

HS Coburg Jochen Merhof-jpg O módulo "Hardware design in automation technology" (Projeto de hardware em tecnologia de automação) tem como objetivo fornecer aos jovens "conhecimento sobre o projeto de máquinas relacionado à segurança", explica o Prof. Dr. Jochen Merhof, diretor do Departamento de Engenharia Elétrica e Ciência da Computação (foto). "Os alunos também aprendem a criar um diagrama de circuito de forma independente com a ajuda do Eplan Electric P8."

"O plano que os alunos criam deve levar em conta a atual Diretiva Europeia de Máquinas, bem como os padrões de segurança operacional e funcional aplicáveis", acrescenta o Prof. Robert Thomas, que supervisiona o módulo como professor.

O programa da universidade foi extremamente bem recebido pelos alunos. "As 25 estações de trabalho equipadas com o Eplan Electric P8 são sempre bem frequentadas", diz Merhof.

         

A tarefa dos alunos é equipar um torno usado para a remoção de rebolos com novos componentes elétricos, incluindo um novo quadro de distribuição e a mais recente tecnologia de segurança, de acordo com a Diretiva de Máquinas da UE.

O objetivo: criar um diagrama de circuito de forma independente

Como o módulo faz parte do programa principal de graduação, os alunos já estão familiarizados com os conceitos básicos de tecnologia digital, CLPs e símbolos de circuitos. Eles também já concluíram o semestre prático em uma empresa. Isso lhes deu uma primeira impressão das habilidades que o mercado de trabalho exige deles. Muitos deles já têm conhecimento prático graças a um estágio concluído anteriormente ou como parte de seu programa de estudo duplo. "No quinto semestre do programa de graduação de sete semestres, eles estão, portanto, bem posicionados para o trabalho prático do curso", diz Merhof.

O módulo compreende um total de 60 horas, metade das quais é dividida entre aulas teóricas e metade entre exercícios práticos que seguem imediatamente as aulas teóricas. Os alunos aprendem a ler diagramas de circuitos (por exemplo, símbolos, numeração, etc.) e a criá-los eles mesmos. Entre outras coisas, eles aprendem sobre a variedade de opções oferecidas pela solução Eplan ao projetar um aplicativo, quais componentes o software fornece e como eles podem ser conectados. Por último, mas não menos importante, eles aprendem a usar o Eplan Data Portal.

A tarefa do projeto no final do semestre consiste em projetar, de forma independente, um conceito de hardware para um torno usado, totalmente automatizado, que deve ser equipado com novos componentes elétricos, um novo painel e a mais recente tecnologia de segurança baseada na Diretiva de Máquinas da UE. Como parte desse conceito, eles devem criar um diagrama de circuito com 15 a 20 páginas com base em uma lista de peças usando o Eplan Electric P8. Para concluir a tarefa, os alunos recebem informações detalhadas sobre o equipamento, o modo de operação e as funções da máquina-ferramenta, bem como listas de elementos operacionais e de segurança.

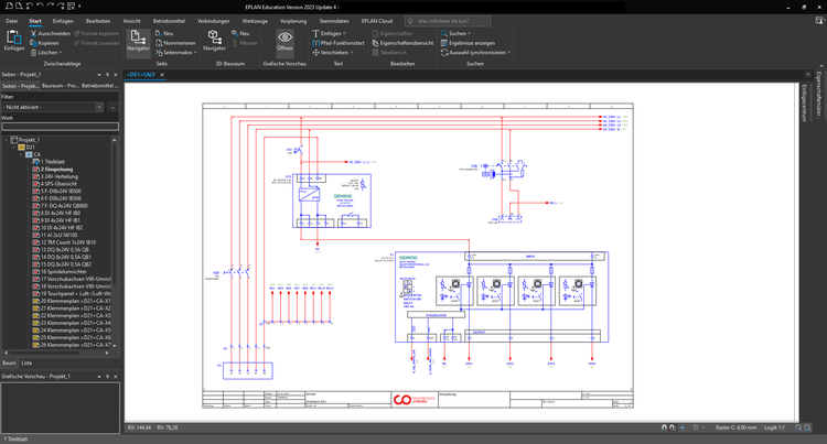
Bild1-png Exemplo de captura de tela de um diagrama de circuito criado com o Eplan Electric P8 como parte do projeto do aluno na Coburg University of Applied Sciences.

Eplan Electric P8 em pesquisa

Além da licença educacional, o corpo docente também adquiriu uma licença profissional para o Eplan Electric P8. Ela o utiliza para fins de pesquisa, por exemplo, em seu Centro de Mobilidade e Energia. Os cientistas da universidade estão trabalhando em tópicos como geração, distribuição e armazenamento de energia renovável. Especificamente, o centro lida com questões de gerenciamento de energia, aquisição de dados e projeto de sistemas de medição. Nesse contexto, os alunos dos outros dois programas de graduação em engenharia do departamento (Tecnologia de Energia e Energias Renováveis e Engenharia Elétrica e Tecnologia da Informação) e os alunos de mestrado em Engenharia Elétrica e Tecnologia da Informação também estão adquirindo experiência com o Eplan Electric P8. Entre outras coisas, eles podem se familiarizar com o tópico de documentação e gêmeos digitais.

A pesquisa sobre novas opções de controle em sistemas de distribuição de energia no Institute of High Voltage Technology, Energy Systems and Plant Diagnostics (IHEA) se concentra, por exemplo, no projeto e no desenvolvimento de sistemas de medição e controle que podem ser usados para investigar o comportamento de carregamento de veículos elétricos e outras tecnologias intersetoriais para o controle de flexibilidade favorável à rede. Os dados são coletados fora da universidade, seja em estacionamentos, empresas ou residências particulares, e são registrados, avaliados e processados em sinais de controle inteligentes para cargas flexíveis na universidade. Os diagramas de circuito necessários para os sistemas de medição e para o hardware exigido no laboratório são desenvolvidos pelo eletricista Martin Scherbel no Laboratório de Aplicações de Armazenamento de Energia e Redes Inteligentes.

Mais informações

Quer conhecer um pouco mais sobre como nossos softwares podem ajudar o seu processo de ensino?

Conheça nosso projeto educacional aqui.