A vista de cima: O observatório voador

A vista de cima: O observatório voador

A aeronave de pesquisa SOFIA permite a observação intensiva do universo por meio do registro da radiação infravermelha. A complexa engenharia elétrica do telescópio único é realizada com uma solução Eplan adaptada de forma exclusiva.

Quem quiser explorar o universo no infravermelho terá pouco conhecimento da Terra, pois os raios infravermelhos não penetram pelo vapor d'água na atmosfera terrestre. É por isso que a NASA e o DLR (Centro Aeroespacial Alemão) já colocaram o único "observatório voador" do mundo em operação em 2010. Um Boeing 747 SP foi equipado com um telescópio de 17 toneladas com um diâmetro de espelho de 2,7 metros, que permite visões profundas, por exemplo, na formação de estrelas e sistemas planetários, a uma altitude de 13 a 14 quilômetros.

Imagens infravermelhas
Imagens infravermelhas - aqui da constelação de Órion - fornecem informações sobre o desenvolvimento de sistemas estelares e o nascimento de estrelas jovens. (Copyright / Crédito: SOFIA)

A aeronave chamada SOFIA (Stratospheric Observatory for Infrared Astronomy) sai várias vezes por semana de Palmdale, Califórnia, para voos de pesquisa. Os cientistas já detectaram várias moléculas até então desconhecidas e puderam estudar a formação de estrelas em detalhes. Isso é importante para a pesquisa básica, por exemplo, porque as reações de energia extremamente altas do "nascimento de uma estrela" levam à fusão de núcleos atômicos, resultando na formação de novos elementos de maior valor. A fusão nuclear transforma hidrogênio e hélio em átomos novos ou diferentes, como carbono, oxigênio ou metais.

Divisão exata de trabalho

Ao operar a SOFIA, existe uma divisão estrita de trabalho. NASA / USRA é responsável por voos e aeronaves. A operação científica é realizada pelo SOFIA Science Mission Operation Center (SMO) do NASA Ames Research Center (Mountainview, Califórnia). O DSI (Instituto Alemão SOFIA) é responsável pelo desenvolvimento e manutenção do telescópio. Essa divisão de tarefas é lógica, pois o telescópio foi fabricado na Alemanha e é uma verdadeira obra-prima da engenharia mecânica e de instrumentos devido a seu rolamento hidrostático e do espelho de Zerodur, por exemplo. Pode ser alinhado com uma precisão de 0,2 segundos de arco e é montado com tanta precisão que pode ser movido em três dimensões com um dedo - quando os freios são liberados - com um peso de aprox. 8 toneladas.

A equipe DSI é responsável pela operação, desenvolvimento e manutenção deste telescópio único. A equipe DSI é responsável pela operação, desenvolvimento e manutenção deste telescópio único. (Copyright / Crédito: DSI)

Para se ter uma ideia da precisão de 0,2 segundos de arco, pode-se imaginar que o telescópio teria sucesso em mirar uma moeda de 1 centavo a 16 quilômetros de distância com um laser de uma aeronave voadora - tudo a 800 km / h de velocidade do ar - enquanto o telescópio está em um furacão.

A maioria dos cerca de 50 colaboradores da DSI trabalha no Centro de Pesquisa de Voo Armstrong da NASA em Palmdale, onde não apenas realiza o trabalho de desenvolvimento e manutenção, mas também apoia as campanhas a bordo e prepara os novos voos de pesquisa. Isso inclui, entre outras coisas, a adaptação da configuração do telescópio de um total de seis instrumentos científicos com diferentes detectores para diferentes faixas de onda, cada um dos quais capta os sinais recebidos pelo telescópio. A equipe em Palmdale torna-se ativa imediatamente se um defeito ou mesmo uma irregularidade ocorrer no telescópio. Se o defeito dizia respeito à eletrônica do telescópio, era necessário visualizar diagramas de circuitos impressos armazenados.

Simon Beckmann

“Quando os sistemas de telescópios individuais foram desenvolvidos há cerca de vinte anos, muitas empresas especializadas estavam envolvidas que usavam diferentes sistemas ECAD. Por este motivo, a documentação elétrica completa foi entregue em arquivos PDF, alguns deles em formas muito diferentes. É sempre um desafio de não perder o controle da situação ao solucionar problemas. "


Simon Beckmann, além do "Harness Master Diagram" (HMD) impresso: "Com nossos requisitos muito especiais, provavelmente usamos 90 por cento de todas as funções Eplan em seu máximo." (Copyright / Crédito: DSI)

Desejo de documentação uniforme e compatível com CAD

Na época, talvez essa fosse uma solução pragmática, mas pelo menos do ponto de vista de hoje não era uma solução voltada para o futuro, porque o serviço de manutenção e o gerenciamento de revisão exigiam muito esforço. E como o SOFIA fará voos de pesquisa até 2034, os gerentes da DSI decidiram converter toda a documentação elétrica em um banco de dados uniforme. Este projeto foi assumido por Simon Beckmann, que anteriormente trabalhou em Palmdale por vários anos como técnico de aviônica e, portanto, conhece muito bem o telescópio único.

A pesquisa de mercado realizada no início do projeto levou a um resultado claro. Os responsáveis descobriram que o Eplan atende melhor aos requisitos muito específicos definidos antecipadamente, embora o sistema não seja fortemente representado na indústria aeroespacial. De acordo com Simon Beckmann, o conceito básico desejado era construir um sistema ECAD específico para DSI com três pilares igualmente fortes. É por isso que a solução baseada no Eplan Electric P8 não é uma versão padrão. Em vez disso, o software foi totalmente adaptado para o aplicativo específico. A TPO Engineering Services GmbH em Crailsheim foi contratada para implementar o software, que não apenas converteu dados de projeto heterogêneos em documentação Eplan uniforme, mas também atendeu aos requisitos especiais e perfil de requisitos. "Os funcionários da TPO realmente fizeram um trabalho extraordinariamente bom", disse Simon Beckmann.

Em três pilares: Sistema feito sob medida

A primeira das três ferramentas baseadas em Eplan, chamada DSI Engineering, é usada para modificar ou reprojetar componentes elétricos e eletrônicos do sistema do telescópio e equipamentos de teste. As bases de trabalho essenciais para isso são a estrutura de estrutura uniforme, a introdução de funções macro e o desenvolvimento de modelos individuais. A DSI Engineering também possui sua própria biblioteca de símbolos específicos para SOFIA, para que empresas industriais ou estudantes contratados pela DSI Engineering possam implementar listas de cabos, plugues ou conexões de uma única fonte, por assim dizer, como parte de suas teses de bacharelado / mestrado.

O segundo pilar é a ferramenta "Serviço e Manutenção DSI". No centro está o "Harness Master Diagram" (HMD) como um diagrama de circuito de visão geral de todo o telescópio.

A função de referências é importante para a análise de erros. A partir do "Diagrama Mestre do Chicote", o diagrama de visão geral, você pode pular diretamente para qualquer nível desejado. (Copyright / Crédito: DSI) A função de referências é importante para a análise de erros. A partir do "Diagrama Mestre do Chicote", o diagrama de visão geral, você pode pular diretamente para qualquer nível desejado. (Copyright / Crédito: DSI)

Simon Beckmann: "Os documentos do diagrama de circuito Eplan fornecem - com base no HMD - uma função de salto eficiente. Assim, apesar da engenharia elétrica muito complexa e mais de 2.000 páginas de diagrama de circuito, a visão geral não é perdida durante a solução de problemas e todos os engenheiros e técnicos do DSI tenha acesso direto aos desenhos detalhados, desenhos de cabos, atribuições de contato de plugue e planilhas de dados dos componentes individuais com o clique de um mouse com o Eplan View ".

Além disso, apesar da imensa riqueza de detalhes, a complexidade também foi deliberadamente reduzida. O motivo: a maioria dos usuários Eplan do DSI não trabalha com o software todos os dias, que deve ser intuitivo de usar. Numerosas funções úteis foram implementadas. Por exemplo, se uma unidade de computação com defeito for substituída por uma nova unidade, o módulo opcional Eplan garante que os diagramas de circuito e a documentação associada sejam atualizados em segundo plano.

A prova do status da documentação atual é obrigatória na indústria aeroespacial

A terceira coluna Eplan chamada "Quality Assurance" é a prova de documentação para todo o cabeamento do telescópico. Simon Beckmann explica por que o módulo de opções do Eplan é tão importante: "Na condição de entrega do telescópio, não havia unidades de reposição. Atualmente, estamos desenvolvendo e fabricando internamente na DSI ou mandando reconstruí-las pelos fabricantes. Como a tecnologia foi mudou muito, as melhorias fluem naturalmente para as réplicas. É por isso que as unidades de substituição têm a mesma interface com o telescópio, mas têm uma estrutura interna completamente diferente. O módulo opcional garante que a equipe DSI possa agir rapidamente em caso de erro e que o SOFIA sempre decole para a próxima missão com o status de documentação atual. " Além disso, essa base também serve para liberar a aeronavegabilidade e monitorar o gerenciamento de revisões.

Ao apresentar o software, a equipe SOFIA se deparou com o desafio de que os fornecedores dos componentes do telescópio haviam fornecido documentos e implementações de diagrama de circuitos muito diferentes na época. Simon Beckmann: "Não podíamos simplesmente assumir os documentos 1: 1. Cada documento teve de ser adaptado e parcialmente reatribuído na estrutura. Em alguns casos, os documentos faltavam ou não eram exibidos com clareza, então tivemos que verificar o sistema funções e, se não estiver claro, nossos colegas na Califórnia tiveram que verificá-las durante o trabalho de manutenção.

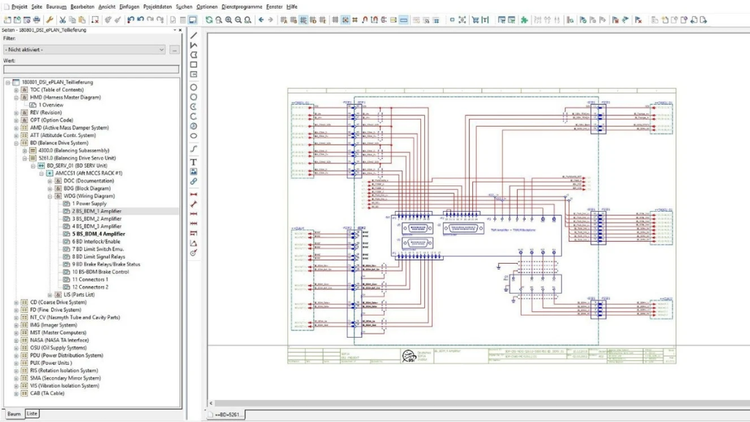
Uso intensivo dos recursos da Eplan

Os desenhos ECAD gerados no Eplan são muito detalhados - aqui o extrato de uma página esquemática da unidade. (Copyright / Crédito: DSI) Os desenhos ECAD gerados no Eplan são muito detalhados - aqui o extrato de uma página esquemática da unidade. (Copyright / Crédito: DSI)

Beckmann continua: "Consultamos o provedor com frequência e recebemos um bom suporte. Conseguimos resolver alguns problemas com as propriedades do bloco, às vezes o tempo era nosso amigo e havia uma nova versão com a função desejada. No total, mais de 50 propriedades do bloco Eplan têm programados para o projeto e até os funcionários da Eplan demonstraram muito respeito pela implantação. Temos orgulho disso.”
Com a nova e unificada documentação do ECAD baseada no Eplan, os responsáveis se sentem bem preparados para futuros trabalhos no telescópio SOFIA e ainda mais para a rápida resolução de irregularidades. A transferência de dados para o Eplan foi concluída, agora há apenas um status de dados comum e sempre atualizado e a equipe do DSI pode "ampliar" cada detalhe elétrico do telescópio o mais rápido possível. A reprodução de unidades individuais com base em dados Eplan (e, portanto, também a modificação da documentação devido a novos componentes) ainda não foi testada - simplesmente porque nenhum componente estava com defeito. Porém, este último teste prático certamente ocorrerá mais cedo ou mais tarde. Afinal, o SOFIA continuará realizando voos de pesquisa por mais quinze anos e ganhará conhecimentos, por exemplo, sobre o nascimento de novas estrelas.

Saiba mais: https://www.dsi.uni-stuttgart.de/